welcome to the meadows

Corbin's Newest
Signature Development

Lots starting at $65,000
almost gone!

view plot map

Welcome Home.

Located right off of Cumberland Falls Highway in Corbin, Kentucky, you'll find Corbin's newest single-family, residential neighborhood.

The Meadows is a development that promotes the experience of quiet, country life with all the modern day urban amenities.

  • Beautiful, landscaped entrance
  • Large, spacious lots
  • Minutes from I-75
  • Minutes away from Grove Marina at Laurel River Lake, Cumberland Falls resort, and great hiking trails
  • Wonderful school systems
  • High-speed Fiber Internet
  • All underground utilities
  • Rear or side entry garages
  • Cable available
  • Home Owners Association
read restrictions
fmovies-online.net
embedgooglemap.net

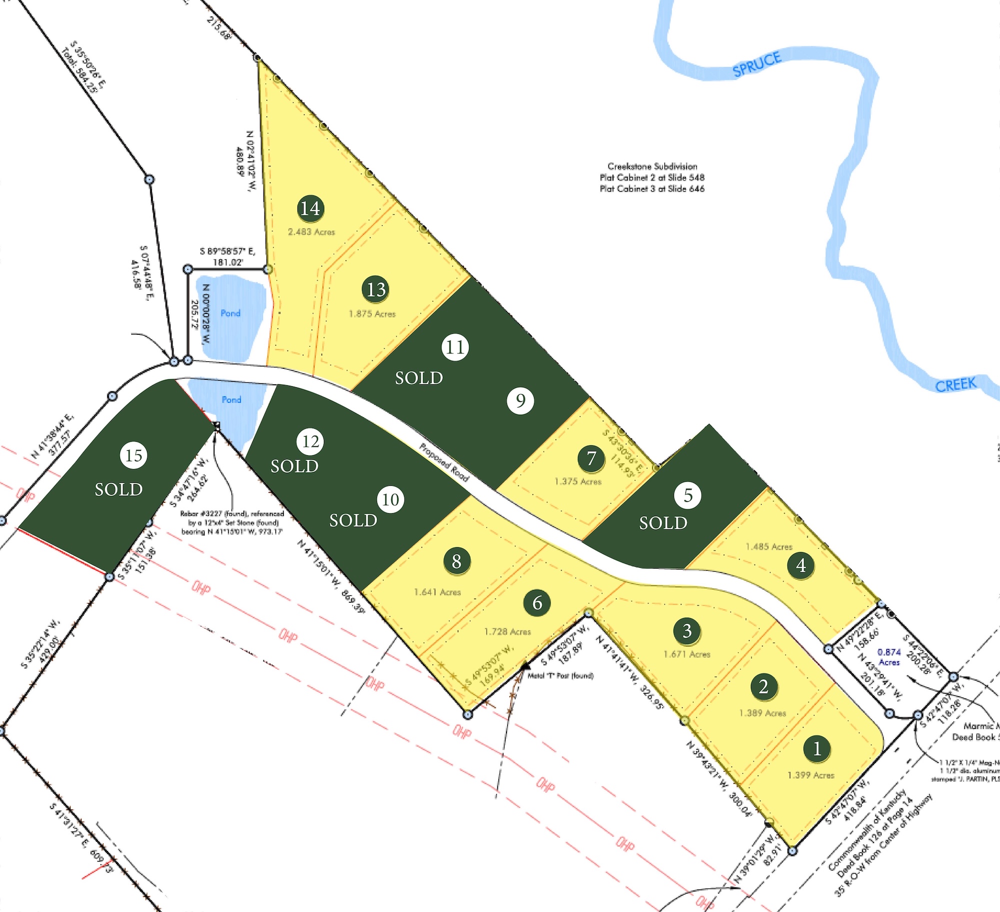
Lots Available!

Lot List

  • Lot 1 – 1.399 acres
  • Lot 2 – 1.389 acres
  • Lot 3 – 1.671 acres
  • Lot 4 – 1.485 acres
  • Lot 5 – 1.617 acres - SOLD
  • Lot 6 – 1.728 acres
  • Lot 7 – 1.375 acres
  • Lot 8 – 1.641 acres
  • Lot 9 – 1.423 acres - SOLD
  • Lot 10 – 1.510 acres - SOLD
  • Lot 11 – 1.554 acres - SOLD
  • Lot 12 – 1.300 acres - SOLD
  • Lot 13 – 1.875 acres - SOLD
  • Lot 14 – 2.483 acres - SOLD
  • Lot 15 – 2.086 acres - SOLD
secure your lot

Preliminary Plat

Lots Available

Ready to go mobile

Whatever you put together, all element are ready to go mobile. We've done the work for you.

Customizable

Of course you can customize anything the way you like it. Using Webflows website editor you have full control!

Current Development Progress

Get in Touch
Give us a call at 606-521-0489
or send us a message and we'll get back to you!
Thank you! Your submission has been received!
Oops! Something went wrong while submitting the form